Vorige | Volgende

Mauritskade 102-1 Amsterdam

Bewaar object
Deze woning is verkocht

Omschrijving

EIGEN GROND dus geen erfpacht!!!

English text below.

Dit leuke en goed onderhouden 2-kamer appartement (gerenoveerd in 2008) op de 1e verdieping met een extra berging op de zolder is gelegen op EIGEN GROND vlakbij het centrum van Amsterdam.

Het appartement heeft een prachtig vrij uitzicht over de Singelgracht door de drie grote authentieke ramen over de volle breedte van de woning.

Mogelijkheid voor een boot voor de deur in de Singelgracht, vanwaar je overal heen kunt varen.

Ligging:
De ligging is perfect. Dit deel van Oost heeft zich ontpopt als een van de meest gewilde buurten van Amsterdam vanwege de centrale ligging en de goede voorzieningen met daarbij de vele leuke bars, restaurants en winkels.
Het openbaar vervoer, zowel de trein, tram (lijn 9, 10 en 14), als bus bevinden zich op loopafstand en op nog geen tien minuten rijden ligt de ring A10. Binnen vijf minuten fietsen bent u bij de Stopera of bij de gezellige Utrechtsestraat. Om de hoek zit aan de ene kant het Tropenmuseum en het Oosterpark en aan de andere kant Artis en een van de beste markten van Nederland, de Dappermarkt.

In de directe omgeving vind je de beste terrassen, zoals bij:
Brouwerij 't IJ, Funenkade (circa 250m)
Louie Louie, Linnaeusstraat (circa 250m)
De Biertuin, Linnaeusstraat (circa 400m)
Spargo, Linnaeusstraat (circa 550m)
Maxwell Café, Beukenplein (circa 1300m)
De Ysbreeker, Weesperzijde (circa 1700m)
En er zijn er nog veel meer op loopafstand.

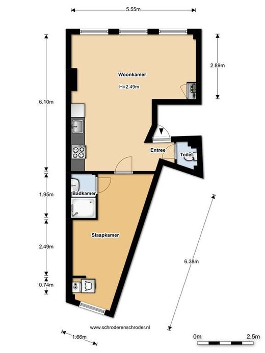
Indeling:
Via het nette trappenhuis komt u bij het appartement.
Entree.
Ruime lichte woonkamer met grenenhouten vloer, gelegen aan de voorzijde en moderne open keuken (2008) voorzien van diverse inbouwapparatuur (gasfornuis, afzuigkap,oven, vaatwasser).
Separaat toilet en moderne badkamer met douche, handdoekradiator en vaste wastafel.
Aan de achterzijde bevindt zich de lichte slaapkamer.
Ruime berging op de zolderverdieping.

Bijzonderheden:
- Eigen grond;
- Funderingscode 2 (2001);
- Woonoppervlak 46m2 (conform Nen-2580);
- Actieve VvE (meerjarenbegroting en onderhoudsplan aanwezig);
- Servicekosten € 80,-- per maand (inclusief waterverbruik);
- Massieve grenenhouten vloer;
- Eigen CV-ketel (Nefit 2008);
- Royale berging op de 4e verdieping;
- Parkeren via vergunningstelsel (geen wachttijd) en betaald parkeren (ruim voldoende parkeergelegenheid aan de achterzijde in de Pieter Vlamingstraat);
- Rookvrij huis.

Vraagprijs € 290.000,- k.k.
Oplevering: in overleg, kan snel.

De woning is op afspraak ook buiten kantooruren en op zaterdagen te bezichtigen.

---------------------------------------------------------------------------------------------------------------------------------

English text

No ground lease!!

Charming, well maintained 1 bedroom apartment with three windows in the living room that provide a superb view over the "Singel-canal". In 2008, the apartment has been renovated with a new kitchen. It's possible to dock a boat in front of the house.

Located in one of the most wanted and still upcoming areas of Amsterdam close to the Tropenmuseum, Linnaeusstraat, Artis, Beukenplein, Stopera, Carré and Utrechtsestraat. Lots of nearby bars and restaurants; amongst others:
Brouwerij 't IJ, Funenkade (approx. 250m)
Louie Louie, Linnaeusstraat (approx. 250m)
De Biertuin, Linnaeusstraat (approx. 400m)
Spargo, Linnaeusstraat (approx. 550m)
Maxwell Café, Beukenplein (approx. 1300m)
De Ysbreeker, Weesperzijde (approx. 1700m)
And many more at walking distance.

Apartment:
Complex entrance, stairs to the first floor.
Large and sunny living room in the front of the apartment with a solid wooden floor.
Open kitchen, renewed in 2008, with several appliances (gas stove, oven, dishwasher).
Bathroom with a shower and a sink.
Separate toilet.
The bedroom is situated in the back of the apartment.
Additional individual storage room in the attic.

Remarks
- Own ground, so NO leasehold;
- About 46m2 without the attic storage;
- Service costs € 80, - per month;
- Private central heating system (2008);
- Spacious storage at the 4th floor;
- No waiting time for parking permit (lots of parking space at the back of the house);
- Non smoking house.

Asking price: € 290.000,- purchase costs are for the buyer.

This house can also be visited during the weekends after making an appointment.
Lees de volledige omschrijving

Kenmerken

Overdracht

Aanvaarding
in overleg

Bouw

Soort woning
tussenverdieping
Type woning
tussenverdieping
Soort bouw
bestaande bouw
Bouwjaar
tot 1906
In aanbouw
nee
Bouwperiode
tot 1906

Details

Voorzieningen
tv kabel
Bouwrijpe bouwgrond
nee
Ligging
aan drukke weg, aan vaarwater, vrij uitzicht
Open portiek
nee
Permanente bewoning
ja
Daktype
zadeldak
Dakmateriaal
bitumineuze dakbedekking

Oppervlakten en inhoud

Woonoppervlakte
46 m²
Oppervlakte overige functies
6 m²
Inhoud
114 m³

Indeling

Aantal kamers
3
Aantal slaapkamers
1
Aantal woonlagen
4
Aantal etages
2
Aantal badkamers
1
Badkamervoorzieningen
douche, wastafel
Keuken type
open keuken

Isolatie en verwarming

Isolatievormen
gedeeltelijk dubbel glas
Soort verwarming
cv ketel
Warmwater installatie
cv ketel
Ketel bouwjaar
2008
Ketel type
Nefit
Ketel eigendom
eigendom

Kadastrale gegevens

Kadastrale aanduiding
Amsterdam S 8324
Eigendomssituatie
volle eigendom

Buitenruimte

Tuintype(n)
geen tuin
Hoofdtuin achterom
nee

Garage

Garagesoorten
geen garage

Parkeergelegenheid

Faciliteit
betaald parkeren, openbaar parkeren, parkeervergunningen

VVE informatie

Appartement bijdrage
80
Periodieke bijdrage
ja
Reservefonds
ja
Vergadering
ja
Onderhoudsverwachting
ja
Opstalverzekering
ja
Inschrijving KvK
ja
Bekijk alle kenmerken

Alle foto's

Kaart Mauritskade 102-1 Amsterdam

naar Mauritskade 102-1 Amsterdam
Op 5 minuten loopafstand Op 5 minuten fietsafstand

Deel dit object